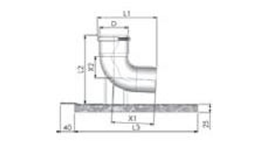
PPs bekötő könyök 80mm tartó sínnel
l1= 148 mm l2= 180 mm l3= 350 mm x1= 110 mm x2= 65 mm
Weboldalunk a jobb felhasználói élmény biztosításához sütiket használ. Süti és adatvédelmi szabályzat